AVR-01-K Устройство управления резервным питанием EA04.006.001

279.54 BYN / шт.
с учетом НДС 20%
Оформить
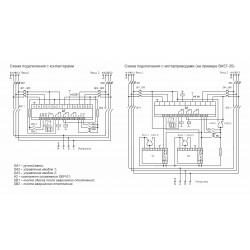
Монтаж на DIN-рейку. Предназначено для построения схем автоматического ввода резервного питания (АВР) на объектах с двумя вводами питания и одной отходящей к нагрузке линии. Применяется для построения систем ввода резервного питания. Устройство управления AVR-01-K контролирует напряжение на двух трехфазных вводах сети питания, если напряжение не выходит за установленные пределы, нагрузка подключается к одному из вводов (в зависимости от установленного приоритета) с помощью внешнего коммутирующего устройства (контактор, автоматический выключатель с электроприводом и т.д.) управляемого устройством AVR-01-K. При выходе напряжения на используемом вводе за установленные пределы (превышение, понижение и т.д.) питание нагрузки будет осуществляться от другого ввода, если его параметры находятся в установленных пределах. После восстановления сетевого напряжения на основном вводе, в зависимости от выбранного приоритета , нагрузка переключится на него либо сохранит питание от текущего ввода. При переключении устро

Характеристики

Производитель
СООО «Евроавтоматика ФиФ» Республика Беларусь, 231300, г. Лида, ул. Минская, 18А
Бренд
Евроавтоматика F&F
Вес
1 штука весит 0,33 килограмма.
Страна производства
БЕЛАРУСЬ

    Добавьте свой отзыв

    Меню сайта