AVR-01-S Устройство управления резервным питанием EA04.006.002

409.14 BYN / шт.
с учетом НДС 20%
Оформить
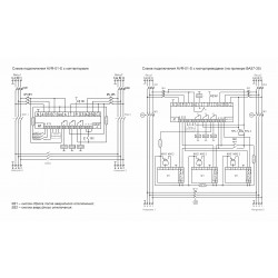
Монтаж на DIN-рейку. Предназначено для построения схем автоматического ввода резервного питания (АВР) на объектах с двумя вводами питания, двумя нагрузками и секционным выключателем. Применяется для построения систем ввода резервного питания. Устройство управления AVR-01-S контролирует напряжение на двух трехфазных вводах сети питания, если напряжение не выходит за установленные пределы, нагрузки подключены к соответсвующим вводам с помощью внешнего коммутирующего устройства (контактор, автоматический выключатель с электроприводом и т.д.) управляемых устройством AVR-01-S. При выходе напряжения на одном вводе за установленные пределы (превышение, понижение и т.д.) питание нагрузки будет осуществляться от другого ввода, через секционный выключатель. После восстановления сетевого напряжения на вводе нагрузка восстановит питание от ввода. При переключении устройство контролирует положение контактов силового аппарата, что бы при залипании его контактов не допустить включение секционного выключателя и тем сам

Характеристики

Производитель
СООО «Евроавтоматика ФиФ» Республика Беларусь, 231300, г. Лида, ул. Минская, 18А
Бренд
Евроавтоматика F&F
Вес
1 штука весит 0,33 килограмма.
Страна производства
БЕЛАРУСЬ

    Добавьте свой отзыв

    Меню сайта